お問い合わせ
排水処理の悩み解決事例
新設 2019-05

兵庫県インスタント麺製造工場の排水処理場改善

処理安定 薬剤削減 悪臭軽減
生産物
インスタント麺各種
課題
油脂分解強化及び沈殿槽の沈降不良改善
解決策
調整槽へのアクアブラスター導入
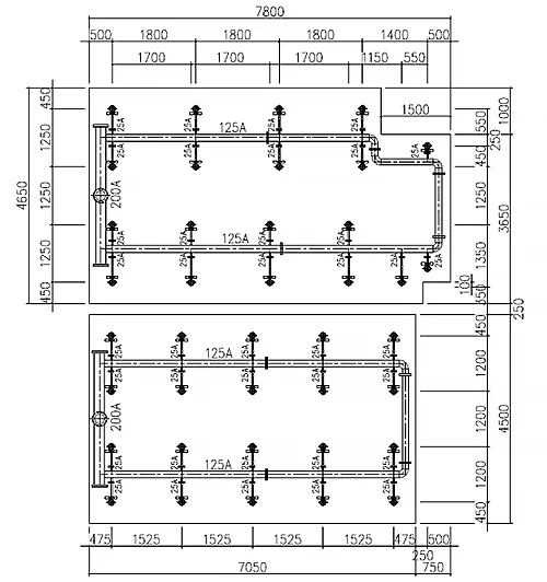
インスタント麺製造工場 設計図
インスタント麺製造工場1
インスタント麺製造工場2
インスタント麺製造工場3

導入後のお客様の声

油脂分の処理能力を強化する為、調整槽の既設の散気装置をアクアブラスターに変更して、処理能力アップを行った結果、ノルマルヘキサン抽出物質は、調整槽通過後50%以上削減されており、その他項目についても同様に下がり、加圧浮上で発生する汚泥を半減化した。

これまで、流入側のpHは酸性傾向で、薬剤中和を行っていたが、現在では、アクアブラスター効果で、自動的に中性となり中和剤は不要となった。

また、DOについても調整槽出口で常に2.0mg/L以上をキープするようになり、最終沈殿槽での沈殿不良も解消され、脱水汚泥の臭気が、嫌気臭から好気臭に変化した。

排水処理製品を詳しく見る
水処理概念を変えたエアレーション散気装置 散気管 アクアブラスター
幅広い分野の排水処理に対応。水処理の常識を覆した特殊散気管
お気軽にご相談ください
ご相談・お問い合わせ